

本招标项目为2019净月潭国家级青少年户外活动营地皮划艇码头建设项目,招标人为12bet官网-12bet网址 ,现面向社会公开招标供应商。
项目地点:12bet官网净月潭森林公园。
质保期限:自货品安装完毕验收合格后,两年内。
质量标准:符合国家现行设计的相关规范和标准。
项目预算:19.5万元(1包)。
投标人资格要求
1、投标人必须是在中国注册的企业法人,具有有效的营业执照,经营范围含体育工程监理、体育品牌代理、体育用品及体育器材销售制造服务等相关业务。具有独立承担民事责任的能力,并在人员、设备、资金等方面具有相应的能力。
2、投标人近三年内有同类业务经验,需提供同类项目合同。
3、投标人具有履行合同所必需的设备和专业技术能力。
4、投标人三年内,在经营活动中没有重大违法记录。
5、本次招标不接受联合体投标。
符合资格要求的投标人,我单位将根据以下评分办法进行综合打分。
技术要求
1、产品材质为铝合金包覆聚乙烯泡沫。
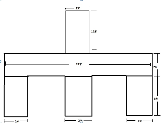
2、产品尺寸(如下图)
3、项目最终价格含税含运费及吊装安装费。
评分办法
|
分值构成 (总分100分) |
投标报价:30分 项目方案:30分 产品业绩:20分 企业及团队资质:20分 |
|||
|
条款号 |
评分因素 |
评分标准 |
||
|
1 |
投标报价 |
初步评审合格的所有投标人多于5家时(不含5家),去掉一个最高投标报价和一个最低投标报价后的算术平均值做为评标基准价。 初步评审合格的所有投标人少于5家时(含5家),初步评审合格的所有投标人投标报价的算术平均值做为评标基准价。 投标报价比评标基准价每高一个百分点,在满分的基础上减0.5分; 投标报价比评标基准价每低一个百分点,在满分的基础上加0.5分; 投标报价得分保留小数点后两位,第三位四舍五入。 |
30分 |
|
|
2 |
投标企业须针对本项目提交一份方案。依据方案内容的针对性、完整性以及内容的细化程度进行打分 |
制造、安装、售后方案系统完整、内容丰富,与招标企业需求契合度高,能较好满足企业需求;方案内容细化程度高。 |
30分 |
|
|
制造、安装、售后方案内容具有一定的完整性,基本与招标企业需求相契合。 |
15分 |
|||
|
制造、安装、售后方案较差。 |
5分 |
|||
|
3 |
产品业绩 |
具有与本次招标产品相关的产品业绩,成交合同或中标通知书。每一项加2分,最高分至20分。 |
20分 |
|
|
4 |
企业及团队资质 |
具有营业执照副本、开户许可证、财务审计报告、行业专业认证、行业颁发的质量管理体系证书(GB/T19001-2008,ISO9001:2008),及其他环境、安全、职业培训体系和行业专利等荣誉证书。每一项加2分,最高分至20分。 |
20分 |
|
请投标人于7月10日报名,下午13:30到12bet官网-12bet网址 群体处领取标书。自公示发布之日起5个工作日后(2019年7月12日下午13:30),携带投标文件(一份正本、四份副本)到12bet官网-12bet网址 ,现场投标(后附:投标文件基本格式)。低于三家符合投标人资格要求,本次招标无效。
招标单位:12bet官网-12bet网址
联系人:王震宇
联系电话:0431-88466657
(项目名称)招标
投标文件
投标人:(盖单位章)
法定代表人:________________(盖章)
委托代理人:(签字或盖章)
日期:年月日
目 录
一、投标函;
二、开标一览表
三、授权委托书;
四、资格审查资料及相应证明材料,复印件加盖公章。
五、按照评分办法,提供相关资料和相应证明材料,复印件加盖公章。
一、投标函
:(招标人名称)
我们收到贵公司 (项目名称)招标文件,经仔细阅读和研究,我们决定参加投标。
1. 如果我们的投标书被接受,我们将严格履行招标文件中规定的每一项要求,按期、按质、按量履行合同的义务。
2. 我们同意按招标文件中的规定,本投标文件的有效期为天。
3. 我们认为你方有权决定中标者,还认为你方有权接受或拒绝所有的投标者。
4. 我们愿意按招标文件的规定交纳元的投标保证金。
5. 如果我们中标,我们愿意按招标文件要求支付招标代理服务费。
6. 如果我方中标后未履行以上承诺,我公司愿意接受有关部门的处理:
A、取消中标资格 B、列入不诚信企业名录予以曝光
C、禁止参加本市政府采购活动1-3年 D、投标保证金不予退还
8、其他说明:。
|
投标人: |
(盖单位章) |
|
法定代表人或其委托代理人: |
(签字或盖章) |
|
地址: |
|
|
电话: |
|
|
传真: |
|
|
邮政编码: |
|
|
年 月 日 |
二、开标一览表
招标项目名称:
招标项目编号: 开标时间: 年 月 日 时(北京时间)
|
投标人 名称 |
投标保证金 (有/无) |
投标报价 (万元) |
服务期限 |
优惠条件 |
服务承诺 |
备注 |
|
有 |
见标书 |
见标书 |
※注:1、本表填写内容必须和投标文件中投标函及投标函附录内容一致,如有不一致以投标函和投标函附录内容为准。
2、投标报价保留小数点后第四位,第五位四舍五入。
3、本表格须装订在投标文件内。然后再将此开标一览表打印一份签字和加盖印章后,单独密封在一个小信封内,随投标文件一同递交,以便开标时唱标用。
投标人: (单位盖章)
法定代表人或授权代理人: (签字)
日期:年月日
三、授权委托书
本人(姓名)系(投标人名称)的法定代表人,现委托(姓名)为我方代理人。代理人根据授权,以我方名义签署、澄清、说明、补正、递交、撤回、修改(项目名称)投标文件、签订合同和处理有关事宜,其法律后果由我方承担。
委托期限:。
代理人无转委托权。
|
投标人: |
(盖单位章) |
|
法定代表人: |
(签字) |
|
身份证号码: |
|
|
委托代理人: |
(签字) |
|
身份证号码: |
|
|
年月日 |
注:投标人法定代表人和授权代理人的身份证复印件附在本页之后。
四、资格审查相关资料
五、评分部分资料